Interior fit-out of a complex of 4 office buildings for the SPW (Public Service of Wallonia), accommodating 1,000 staff members, with the aim of improving efficiency and internal cohesion

Interior fit-out of a complex of 4 office buildings for the SPW (Public Service of Wallonia), accommodating 1,000 staff members, with the aim of improving efficiency and internal cohesion

This project is part of the rationalisation of the Walloon real estate portfolio, aiming to consolidate services, reduce costs, and modernise workspaces. “We are convinced that the environment we create profoundly influences those who evolve within it.”
This conviction guided our approach: to design spaces capable of fostering serenity, openness, transparency, sharing, and simplicity, while revealing a sense of beauty.


| program | Interior fit-out of a complex of 4 office buildings for the SPW (Public Service of Wallonia), accommodating 1,000 staff members, with the aim of improving efficiency and internal cohesion |
| client | SPW SG - SPW SUPPORT - Real Estate Management Department |
| address | 44-50 Boulevard Ernest Mélot • 5000 Namur |
| building type | work |
| status | completed |
| offices | brussels |
| size | 24.000 sqm (net area) / 1,000 staff |
| team | • Architectes : assar part of Sweco in collaboration with · Global Design & Build • Special engineering: Lemaire Ingénieurs • Acoustics: Environment Acoustics • H&S coordinator: Eric Dulieu |


Beauty is not a secondary or superficial element. It is neither a luxury nor a form of entertainment reserved for a few. It holds an essential place in our lives, as it enriches them and gives them an additional dimension.
We have taken up this challenge. The completed fit-outs reflect this ambition: to combine human quality with aesthetic quality. These spaces provide employees with an environment conducive to carrying out their missions and to a fulfilling professional life. They welcome teams into a pleasant setting that encourages respect and fosters calm communication.
Finally, they enable the institution to strengthen the quality of its actions and to enhance the value of collective work.



Not all materials are locally sourced, but several come from companies located within a 250 km radius of the site, in accordance with the award criteria. Particular attention was given to the use of healthy materials, favouring ecological, recycled products with low VOC content.





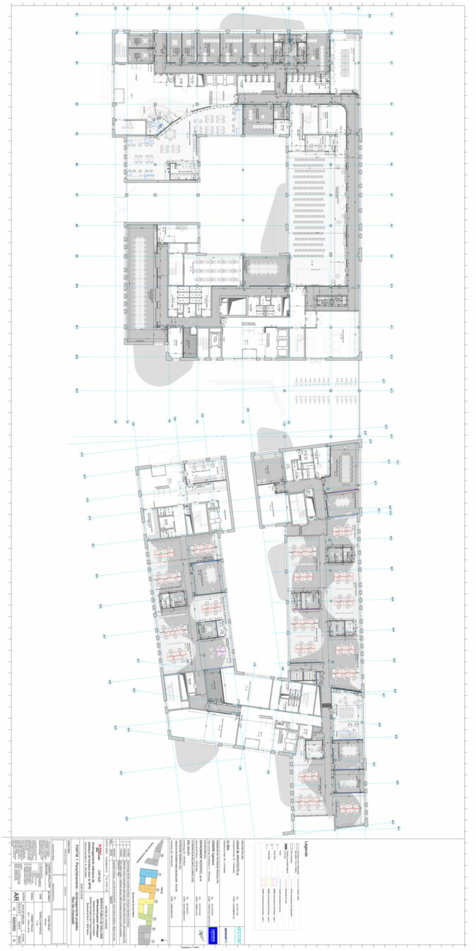
ground floor layout plan • first-floor layout plan

fourth-floor layout plan
want to know more about assar or contribute to its continuous development